上海恒點傳動設備有限公司
加微信聯系 恒點減速機QQ2:51228482
[HTML] [XML]  産品展示産品展示-RSS  新聞中心新聞中心-RSS  技術支持技術支持-RSS
産品分類: 減速機蝸輪絲杆升降機轉向箱蝸輪蝸杆減速機齒輪減速機行星齒輪減速機擺線針輪減速機無級變速機大功率減速器
上海恒點傳動設備有限公司
資訊分類
和産品相關的技術文章
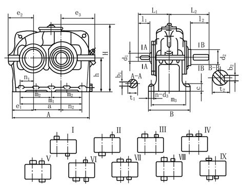
當前位置:網站首頁 > 技術支持 > ZDY、ZDZ型減速器裝配型式及其安裝尺寸(JB/T8853-2001)

ZDY、ZDZ型減速器裝配型式及其安裝尺寸(JB/T8853-2001)

Tags: Z系列硬齒面圓柱齒輪減速機    發布時間: 2015-01-30

減(jiǎn)速器的外形、裝(zhuāng)配型式及其安裝(zhuāng)尺寸。

減速器的外形、裝配型式及安裝尺寸

790
ZDY
ZDZ
A
B
H≈
a
i=1.25~2.8
i=3.15~4.5
i=5~5.6
d1(m6)
l1
L1
b1
t1
d1(m6)
l1
L1
b1
t1
d1(m6)
l1
L1
b1
t1
80
235
150
210
80
28
42
112
8
31
24
36
106
8
27
19
28
98
6
21.5
100
290
175
260
100
42
82
167
12
45
28
42
127
8
31
22
36
121
6
24.5
125
355
195
330
125
48
82
182
14
51.5
38
58
158
10
41
28
42
142
8
31
160
445
245
403
160
65
105
225
18
69
48
82
202
14
51.5
38
58
178
10
41
200
545
310
507
200
80
130
275
22
85
60
105
250
18
64
48
82
227
14
51.5
250
680
370
662
250
100
165
340
28
106
80
130
305
22
85
60
105
280
18
64
280
755
450
722
280
110
165
385
28
116
85
130
350
22
90
65
105
325
18
69
315
840
500
770
315
130
200
445
32
137
95
130
375
25
100
75
105
350
20
79.5
355
930
550
930
355
140
200
470
36
148
100
165
435
28
106
90
130
400
25
95
400
1040
605
982
400
150
200
485
36
158
110
165
450
28
116
95
130
415
25
100
450
1150
645
1090
450
160
240
545
40
169
120
165
470
32
127
100
165
470
28
106
500
1290
710
1270
500
180
240
580
45
190
130
200
540
32
137
120
165
505
32
127
560
1440
780
1360
560
200
280
660
45
210
150
200
580
36
158
130
200
580
32
137
ZDY ZDZ
d2(m6)
l2
L2
b2
t2
C
m1
m2
m3
n1
n2
e1
e2
e3
h
地腳螺栓孔
重量
kg
潤滑油
量L
d3
n
80
32
58
128
10
35
18
180
120
40
60
67.5
81
101
100
12
4
14
0.9
100
48
82
167
14
51.5
22
225
140
52.5
72.5
85
102
122
125
15
26
1.6
125
55
82
182
16
59
25
290
160
65
100
97.5
119
155
160
15
76
3.2
160
70
105
225
20
74.5
32
355
200
73
122
118
141
190
200
18.5
4
115
6.5
200
90
130
275
25
95
40
425
255
80
145
140
169
235
250
24
4
228
12.5
250
110
165
340
28
116
50
550
275
305
110
190
175
214
295
315
28
6
400
23
280
130
200
420
32
137
50
620
310
380
120
220
187.5
228
328
355
28
6
540
36
315
140
200
445
36
148
63
700
350
420
137.5
247.5
207.5
254
364
400
35
800
45
355
150
200
470
36
158
63
770
385
470
142.5
272.5
222.5
269
397
450
35
870
70
400
160
240
525
40
169
80
850
425
510
150
300
245
304
454
500
42
6
1640
90
450
170
240
545
40
179
80
950
475
550
165
335
265
331
501
560
42
2100
125
500
190
280
620
45
200
100
1080
540
610
190
390
295
418
618
630
42
3100
180
560
240
330
56
252
100
1200
600
680
205
435
325
432
662
710
48
6
3730
250
上一篇 上一篇: ZDY、ZDZ型減速器功率(JB/T8853-2001)
下一篇 下一篇: ZDY、ZDZ型減速器概述(JB/T8853-2001)
相關新聞文章 > 查看更多
蝸杆傳動的熱平衡是什麽 2025-04-03
對滾動軸承保持架用材料有何要求 2024-11-07
諧波傳動減速器檢驗規則(GB/T14118-93) 2024-03-26
ZQ、ZQH型圓柱齒輪減速器外形與安裝尺寸及軸端型式(JB1585-75) 2015-09-04
ZQ、ZQH型圓柱齒輪減速器承載能力(JB1585-75) 2015-09-03
ZQ、ZQH型圓柱齒輪減速器技術參數(JB1585-75) 2015-09-02
ZQ、ZQH型圓柱齒輪減速器型号與示例(JB1585-75) 2015-09-01
YK系列圓錐—圓柱齒輪減速器類型、特點和适用範圍、裝配型式 、代号示例(YB/T050-93) 2015-08-08
YK系列圓錐—圓柱齒輪減速器公稱功率和熱功率(一)(YB/T050-93) 2015-08-07
YK系列圓錐—圓柱齒輪減速器公稱功率和熱功率(二)(YB/T050-93) 2015-08-06
YK系列圓錐—圓柱齒輪減速器傳動比(YB/T050-93) 2015-08-05
YK系列圓錐—圓柱齒輪減速器轉動慣量和影響系數(YB/T050-93) 2015-08-04
返回頂部 關閉本頁】 【打印本頁
電 話:021-22815912  021-22816186  傳 真:021-32050712   郵箱 :sales@021jsj.cn  減速機 絲杆升降機 轉向箱 蝸輪蝸杆減速機
Copyright©2009-2026上海恒點傳動設備有限公司 版權所有  地址:上海市金山區亭林鎮林寶路39号  郵編:200442  滬ICP備10206998号-2 
友情鏈接機械設備網 | 渦街流量計 | 輸送機 | 變頻控制櫃 | 破碎機 | 工業同城 | 手持終端 | 柴油發電機 | uv平闆打印機 | 風淋室 | QUV | 防火門 | 九愛圖紙 | 感應加熱設備 | 輸送帶廠家 | 噪聲治理 | 西門子plc | 拖鏈電纜 | AGV | 機械雜志 | 現代機械 | UWB高精度定位 |